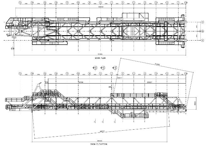
stacker / reclaimer boom

queensland

DETAIL DRAFTING

HOME           ABOUT US           CAPABILITIES           SERVICES          PROJECTS          CONTACT US

© Copyright 2020. All rights Reserved

Fraser Engineers Pty Ltd